
關注我們獲得更多精彩內容

在崇尚餐飲文化的中國,餐飲直接影響酒店在行業中的競爭力。因此為餐飲出品質量提供保障的廚房在酒店建設工程中尤為重要。
對于國內外知名的高端酒店品牌而言,有著豐富的星級廚房建設經驗的廣州天圣,無疑是締造五星級酒店廚房**合作伙伴。廣州天圣為酒店廚房提供整體解決方案。

凱里裕豪華美達廣場酒店
凱里裕豪華美達廣場酒店位于貴州省黔東南州州府所在地——凱里市,由貴州東昇集團投資開發,溫德姆旗下品牌——華美達廣場酒店進駐管理。項目總投資4億元,配置有全日制餐廳、特色餐廳、中餐廳、中餐包房、日式餐廳、酒吧、行政酒廊、健身中心、SPA等,集住宿、餐飲、會議、娛樂于一體的五星級標準酒店。

溫德姆酒店集團是全球規模**、業務最多元化的酒店集團企業。其獨有的酒店管理方式、堅持全球統一的服務標準、同時也尊重國際標準下的本土化差異,是溫德姆酒店集團的成功之道。

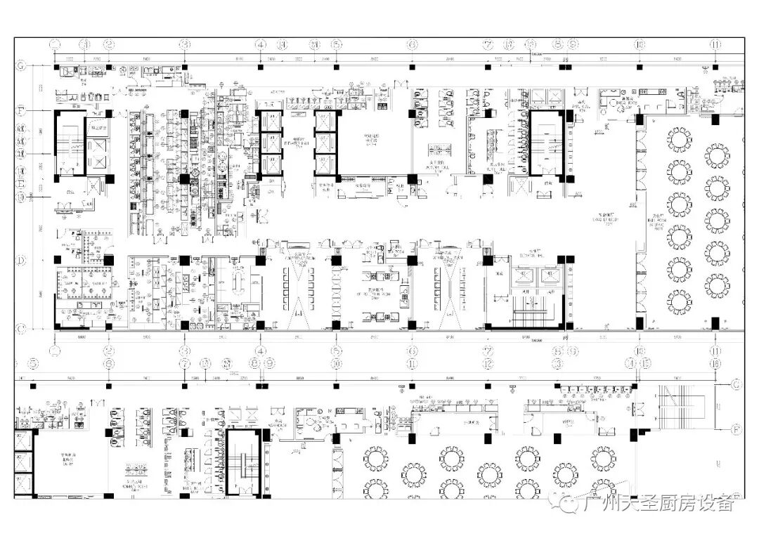
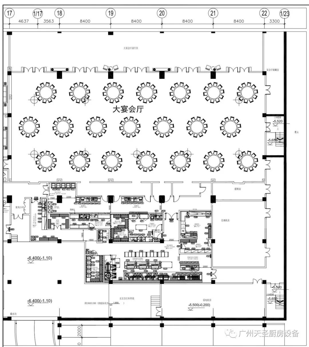
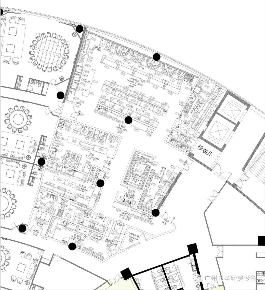
凱里裕豪華美達廣場酒店廚房面積約1000㎡,工程建設內容包括:全日制廚房、中餐廳廚房、宴會廚房、日料廚房、粗加工中心、大堂酒吧和行政酒廊。


遵義鑫前雅閣酒店
遵義鑫前雅閣酒店坐落于“紅色革命圣地”貴州遵義,擁有180間/套客房,投資2億,是雅閣酒店集團旗下奢華五星酒店。

雅閣酒店集團是來自澳大利亞,專注于酒店管理的澳洲最具規模的酒店集團。目前雅閣酒店集團擁有雅閣大酒店、雅閣璞邸酒店、雅閣酒店、澳斯特&澳斯特精選、雅閣度假酒店、雅閣公寓與雅閣Metro酒店七大酒店品牌。

遵義鑫前雅閣酒店廚房面積約1000㎡,工程建設內容包括:全日制廚房、中餐廳廚房、宴會廚房、粗加工中心、員工廚房。


南大港碧桂園美蘆灣大酒店
南大港碧桂園美蘆灣度假村項目由碧桂園集團與河北眾誠集團共同建設,占地面積460畝,計劃總投資30億元。美蘆灣五星級大酒店作為首個開工項目,占地61畝,建筑面積30000平方米,預計投資2.1億元,建設客房200余間。該項目突出濕地主題特色,滿足游客運動保健、休閑度假、生態觀光、商務會議、溫泉療養等多種需求。

碧桂園酒店集團,本土發展快速、綜合實力雄厚的高星級酒店管理公司,隸屬福布斯世界300強企業——碧桂園集團。依托集團雄厚實力及**管理能力,近20年來不斷發展壯大,目前已成功培育“碧桂園鳳凰酒店”、“碧桂園假日酒店”及“碧桂園鳳祺公寓”三大品牌,擁有已開業酒店69家,客房總數約20000多間。2018-2014年五度蟬聯中國飯店金馬獎——十佳中國酒店管理公司。

美蘆灣五星級大酒店廚房面積約700㎡,工程建設內容包括:全日制廚房、中餐廳廚房、宴會廚房、粗加工中心。


賀州園博園東融山莊
東融山莊位于賀州市園博園內,是賀州市旅游實業集團對外打造的第五家酒店,項目總投資1.91億元,占地總面積58畝,擁有山景房、園景房、親子主題房、商務套房、總統套房等共155間,是集住宿、餐飲、娛樂、會議、休閑于一體的高端會務度假型酒店。

廣西賀州市旅游實業集團是賀州市人民政府為全面整合旅游資源,加快推進產業轉型升級,實現做大做強旅游產業的旅游投資經營主體和融資平臺。現有12個子公司,包括3個景區和5家酒店。

東融山莊廚房面積約1000㎡,工程建設內容包括:全日制廚房、中餐廳廚房、宴會廚房、日料廚房、粗加工中心、大堂酒吧和行政酒廊。

新千金陵大飯店
新千金陵大飯店是新千集團的代表之作,是西寧市城東區首家五星級大酒店、5 萬平方米的五星級酒店,高 99.9米,共28層,配備了商務中心,國際會議中心、大型宴會廳,健身房、咖啡廳、**寫字樓、酒店客房,頂層設置總統套房,總客房數達到348間。是接待、會議和宴會新的理想首選,建成后將成為西寧市地標性建筑。

新千集團成立于千禧年的2000年,經過十多年的高速發展,逐步構建了從規劃設計到商業運營的房地產全價值鏈駕馭能力。同時,圍繞房地產核心業務進行了相關多元化布局,現已發展成為一家集地產、商業、物業、酒店和蟲草等五大產業于一體的多元化企業集團。

新千金陵大飯店廚房面積約3000㎡,工程建設內容包括:全日制廚房、中餐廳廚房、宴會廚房、日料廚房、粗加工中心、大堂酒吧和行政酒廊。

廣州天圣廚房設備有限公司
榮譽出品
